Trilocale in vendita

Roma, Via Cavour - Rione Monti
€ 595.000
3 locali 3 locali
80 Mq 80 Mq
1 bagno 1 bagno

Trilocale in vendita

Roma, Via Cavour - Rione Monti

Descrizione annuncio

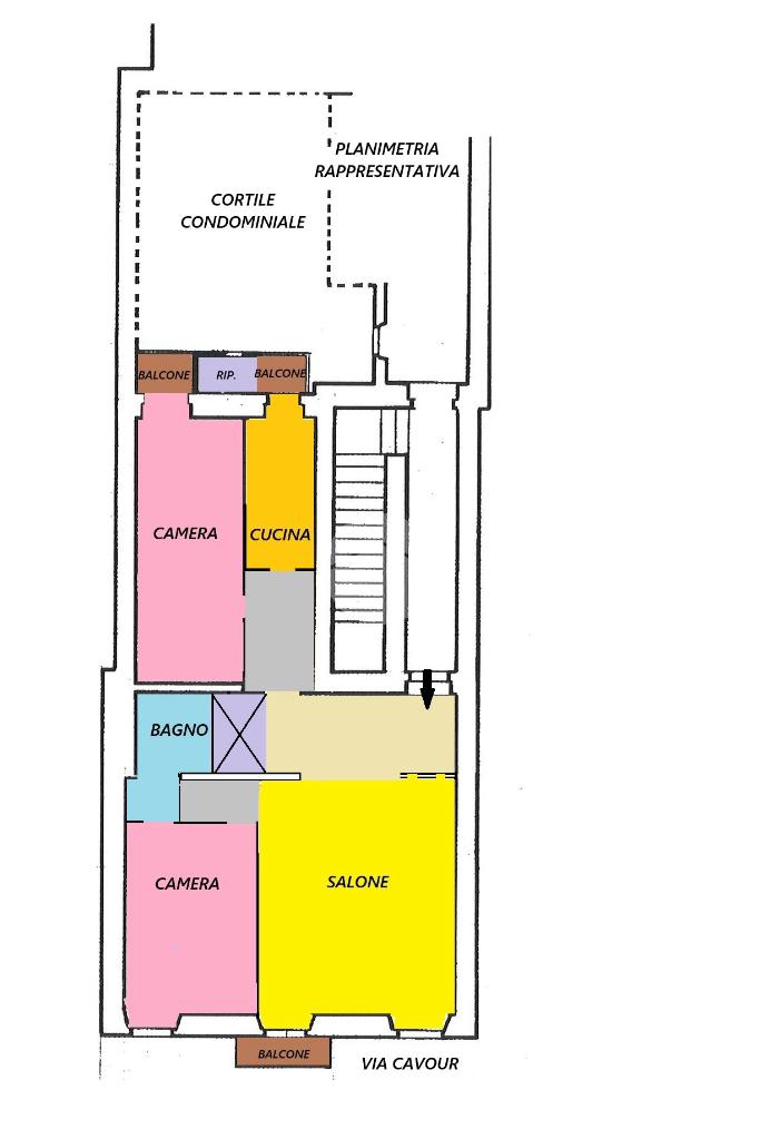
In via Cavour, a pochi passi dalla Basilica di S. Maria Maggiore, proponiamo in vendita un trilocale di 80 metri quadri.

L'immobile, posto al quarto piano di un palazzo dotato di ascensore, gode di doppia esposizione e un'ottima luminosità, con un bell'affaccio su via Cavour.

Internamente si compone di un accogliente ingresso con salone a vista con doppio affaccio su via Cavour, Due camere, cucinotto con soffitti in legno a vista, servizio con vasca. Sono presenti, inoltre, tre piccoli balconcini, uno nella zona giorno, uno in cucina e uno nella cameretta.
L'immobile si presenta in buono stato generale e con una logica distribuzione degli spazi seppure facilmente modificabile per soddisfare gusti o esigenze abitative differenti, complice la presenza di diversi muri tramezzi.
La posizione è ideale per chi vuole vivere in centro senza rinunciare ai servizi che offre la zona ed strategica per raggiungere facilmente ogni punto della città anche grazie alla vicina metro Cavour e agli ottimi collegamenti con la stazione FS e gli aeroporti.

. L'IMMOBILE E' LOCATO FINO A FEBBRAIO 2027.

Mostra tutto

Nelle vicinanze

Trasporto pubblico Trasporto pubblico
Cavour
Cavour
250 m
Colosseo
Colosseo
660 m
stazione di Roma Termini
stazione di Roma Termini
740 m
Termini Laziali
Termini Laziali
930 m
Termini
Termini
580 m
Ricariche auto elettriche Ricariche auto elettriche
Roma Ricci | EnelX
670 m
Eneldrive Via Torino
730 m
Roma Barberini 19 | EnelX
940 m
Roma Barberini 15 | EnelX
940 m
Roma Barberini 43 | EnelX
940 m
Scuole Scuole
Scuola Alfredo Baccarini
100 m
Dipartimento di ingegneria dell'Informazione, Elettronica e Telecomunicazioni
360 m
Dipartimento di Ingegneria dell'Informazione, Elettronica e Telecmunicazioni
360 m
DIET - Dipartimento di Ingegneria dell'Informazione, Elettronica e Telecomunicazioni
360 m
Dipartimento di Ingegneria dell'Informazione, Elettronica e Telecomunicazioni
360 m
Farmacia Farmacia
Pharmacia Sanitaria
70 m
Farmacia Viminale
340 m
Farmacia
380 m
Farmacia Tioli
390 m
Farmacia Savignoni
420 m
Ospedali Ospedali
Ospedale Militare Celio
1,1 Km
Azienda Ospedaliera San Giovanni - Addolorata (Presidio Santa Maria)
1,2 Km
Policlinico militare di Roma "Celio"
1,3 Km
Azienda Ospedaliera San Giovanni-Addolorata (Presidio S.Giovanni)
1,3 Km
Azienda Ospedaliera San Giovanni Addolorata
1,3 Km
Supermercati Supermercati
Pam Local
110 m
Tuodì
230 m
Supermercato Elite
280 m
Simply market
360 m
Coop
380 m
Negozi Negozi
Calzature Giacomo Santini
100 m
Minimarket
160 m
non solo Alimentari
170 m
Polska Sklep
190 m
Carmelo Salvatore Scionti
220 m
Bar Bar
Black Market
90 m
Bar
90 m
Blackmarket Hall
150 m
Antigallery
230 m
Il Palchetto
400 m
Ristoranti Ristoranti
Ristorante-Pizzeria Gallo Matto
50 m
Pizzeria la mela d'oro
60 m
La mucca biricchina
70 m
Taverna Urbana
80 m
Starbaps Roma
90 m
Mostra tutto

Caratteristiche

Rif.:
61157749
Piano:
4 di 5 con ascensore (Piano alto)
Balconi:
3
Camere da letto:
2
Arredamento:
Parziale
Condizionamento:
Autonomo
Mostra tutto
Prezzo Prezzo
€ 595.000
Rata mutuo Rata mutuo
€ 2.805 / mese
Spese annue Spese annue
€ 1.200
Proponi il tuo prezzoProponi il tuo prezzo
Immobile valutato con T·Valuta

Classe Energetica

G
G
G
G
G
G
G
G
G
EP globale non rinnovabile:
175.00 kW h/m² anno
EP globale rinnovabile:
175.00 kW h/m² anno
EP invernale del fabbricato:
EP estiva del fabbricato:
Anno di costruzione:
1800
Riscaldamento:
Autonomo
Tipo impianto:
A radiatori
Tipo alimentazione:
Metano

Ti interessa visionare l'immobile?

Fissa un appuntamento  Fissa un appuntamento

Richiedi informazioni

Clicca su Leggi per aprire l'informativa
* Questi campi sono obbligatori

Calcola il tuo mutuo

Semplice e senza impegno
Anticipo

( % )
Mutuo

( % )

pochi semplici passi

inserisci i tuoi dati
Questionario completato
Grazie per aver richiesto un appuntamento senza impegno con un nostro Consulente del Credito e Assicurativo.

Hai inserito correttamente tutti i dati necessari e a breve riceverai una e-mail con un link da convalidare per inviare i tuoi dati.
Affiliato
Studio Immobiliare Cavour Srl
Via Leonina, 25 00184 Roma (RM)
Via Leonina, 25 00184 Roma (RM)
Zona: Rione Monti-Cavour-Fori Imperiali
Mostra su mappa
Orari: dal lunedì al venerdì dalle 9:00 alle 20:30. Sabato dalle 9:00 alle 13:30 e dalle 14:30 alle 19:00
Affiliato
Studio Immobiliare Cavour Srl
Via Leonina, 25 00184 Roma (RM)

2026 Tecnocasa Franchising S.p.A. - P. IVA 08365160152 - Via Monte Bianco 60/A 20089 Rozzano (MI). Ogni agenzia ha un proprio titolare ed è autonoma. Privacy policy | Policy utilizzo | Cookie policy