Quadrilocale in vendita

Roma, Via del Viminale - Rione Monti
€ 1.090.000
Prezzo aggiornato
6 locali 6 locali
145 Mq 145 Mq
1 bagno 1 bagno

Quadrilocale in vendita

Roma, Via del Viminale - Rione Monti

Descrizione annuncio

Via del Viminale prende il nome dall’omonimo Colle, il più piccolo dei 7 sui cui pone le fondamenta l’antica Roma.

Come oggi, questa zona, sin da tempi dell’età Repubblicana, fu scelta dai patrizi come zona residenziale, ed è qui che costruirono le loro sfarzose Villae.

In questa via, a ridosso della Piazza del Viminale sede dell’attuale Ministero degli Interni, proponiamo la vendita di un bellissimo appartamento posto al terzo piano di uno stabile di epoca Umbertina dotato di ascensore .

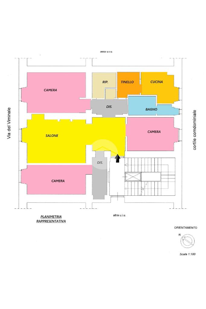
La metratura complessiva è di circa 145 metri quadri commerciali.

L’appartamento gode di una doppia esposizione che dona all’immobile un’impareggiabile luce naturale.

Entrando in casa un comodo disimpegno, impreziosito dalla pavimentazione d'epoca, ci introduce nel salone doppio con un bel camino in pietra, dalla finetra il panorama è un quadro tridimenzionale con la piazza, le atissime palme e il Teatro dell’Opera .

Troviamo poi 3 ampie camere matrimoniali ( di cui una attualmente utilizzata come studio), una cucina con annesso tinello, un grande bagno finestrato con doccia e area lavanderia, ed un indispensabile ripostiglio.

I soffitti sono alti 3.90 mt, gli infissi sono il legno doppiovetro.



La vicinanza alla zona commerciale di via Nazionale, ad una rimessa, ai supermercati e a tutti i servizi che offre il quartiere, rende quest’immobile particolarmente interessante per chi cerca una soluzione in centro senza rinunciare a tutte le comodità a pochi passi da casa.

Tutte le informazioni, foto e planimetrie contenute nel presente annuncio pubblicitario non costituiscono elemento contrattuale.

Mostra tutto

Nelle vicinanze

Trasporto pubblico Trasporto pubblico
Repubblica
Repubblica
300 m
Termini
Termini
460 m
stazione di Roma Termini
stazione di Roma Termini
570 m
Termini Laziali
Termini Laziali
970 m
Termini
Termini
370 m
Ricariche auto elettriche Ricariche auto elettriche
Eneldrive Via Torino
360 m
Roma Barberini 43 | EnelX
610 m
Roma Barberini 29 | EnelX
620 m
Roma Barberini 19 | EnelX
630 m
Roma Barberini 15 | EnelX
640 m
Scuole Scuole
Pontificio Seminario Lombardo
430 m
Scuola Alfredo Baccarini
490 m
Accademia Alfonsiana
660 m
Istituto Tecnico Turismo Cristoforo Colombo
680 m
Dipartimento di ingegneria dell'Informazione, Elettronica e Telecomunicazioni
740 m
Farmacia Farmacia
Farmacia Viminale
90 m
Farmacia Piram
220 m
Pharmacia Sanitaria
340 m
Farmacia
340 m
Pulker Farma
360 m
Ospedali Ospedali
Azienda Ospedaliera San Giovanni - Addolorata (Presidio Santa Maria)
1,5 Km
Ospedale Militare Celio
1,5 Km
Policlinico Universitario Umberto I
1,5 Km
Azienda Ospedaliera San Giovanni-Addolorata (Presidio S.Giovanni)
1,6 Km
Policlinico militare di Roma "Celio"
1,7 Km
Supermercati Supermercati
Carrefour Express
40 m
Eataly Roma Repubblica
240 m
Coop
240 m
Supermercati
250 m
Pam Local
260 m
Negozi Negozi
Negozi
140 m
Marte's
170 m
Le One
180 m
Ruben
180 m
Sandro Ferrone
190 m
Bar Bar
Il Palchetto
20 m
Snack bar peter bar
180 m
Apotheke Cocktail Bar
220 m
One Way
300 m
Black Market
330 m
Ristoranti Ristoranti
La Matriciana
20 m
La Locanda Pugliese
20 m
Antica Bohéme
60 m
Holiday
90 m
L'angolo di Napoli
120 m
Mostra tutto

Caratteristiche

Rif.:
61203504
Piano:
3 di 6 con ascensore (Piano medio)
Camere da letto:
3
Arredamento:
Parziale
Condizionamento:
Autonomo
Ascensore:
Mostra tutto
Prezzo Prezzo
€ 1.090.000
Rata mutuo Rata mutuo
€ 5.153 / mese
Spese annue Spese annue
€ 1.500
Proponi il tuo prezzoProponi il tuo prezzo
Immobile valutato con T·Valuta

Classe Energetica

G
G
G
G
G
G
G
G
G
EP globale non rinnovabile:
175.00 kW h/m² anno
EP globale rinnovabile:
175.00 kW h/m² anno
EP invernale del fabbricato:
EP estiva del fabbricato:
Anno di costruzione:
1800
Riscaldamento:
Autonomo
Tipo impianto:
A radiatori
Tipo alimentazione:
Metano

Prezzo ridotto di €1 (8%%)

Ti interessa visionare l'immobile?

Fissa un appuntamento  Fissa un appuntamento

Richiedi informazioni

Clicca su Leggi per aprire l'informativa
* Questi campi sono obbligatori

Calcola il tuo mutuo

Semplice e senza impegno
Anticipo

( % )
Mutuo

( % )

pochi semplici passi

inserisci i tuoi dati
Questionario completato
Grazie per aver richiesto un appuntamento senza impegno con un nostro Consulente del Credito e Assicurativo.

Hai inserito correttamente tutti i dati necessari e a breve riceverai una e-mail con un link da convalidare per inviare i tuoi dati.
Affiliato
Studio Immobiliare Cavour Srl
Via Leonina, 25 00184 Roma (RM)
Via Leonina, 25 00184 Roma (RM)
Zona: Rione Monti-Cavour-Fori Imperiali
Mostra su mappa
Orari: dal lunedì al venerdì dalle 9:00 alle 20:30. Sabato dalle 9:00 alle 13:30 e dalle 14:30 alle 19:00
Affiliato
Studio Immobiliare Cavour Srl
Via Leonina, 25 00184 Roma (RM)

2026 Tecnocasa Franchising S.p.A. - P. IVA 08365160152 - Via Monte Bianco 60/A 20089 Rozzano (MI). Ogni agenzia ha un proprio titolare ed è autonoma. Privacy policy | Policy utilizzo | Cookie policy